afbeelding
Vorige | Volgende

Volharding 33 Bunschoten-Spakenburg

Bewaar object
Deze woning is verkocht onder voorbehoud

Omschrijving

Nieuw in de verkoop: Instapklare (uitgebouwde) MIDDENWONING met BERGING gelegen op een Toplocatie!

De woning aan de “Volharding 33” heeft een moderne en sfeervolle uitstraling en is voorzien van alle gemakken en comfort die je mag verwachten van een woning uit deze tijd. Zo is de woning uitstekend geïsoleerd en heeft 9 zonnepanelen, heeft 3 ruime slaapkamers op de 1e verdieping, een zeer royale zolderkamer op te splitsen in twee kamers, uitgebouwde woonkamer met veel lichtinval, moderne open keuken en een keurig aangelegde achtertuin gelegen op het westen.

Ook zijn alle voorzieningen op een zeer korte afstand te bereiken. Binnen enkele loopminuten bevind je je in het centrum van Bunschoten-Spakenburg met authentieke haven en verschillende horecagelegenheden, sportfaciliteiten en winkels. Diverse parkeervoorzieningen voor de deur.

Bel ons voor een afspraak voor een bezichtiging bij deze prachtige woning op een mooie locatie gelegen!

Indeling:
Begane grond:
Entree, hal met meterkast, toilet, trapopgang naar de 1e verdieping en toegang tot de woonkamer. De woonkamer is afgewerkt met een pvc-vloer met vloerverwarming, glad gestuukte wanden en gespoten plafond. De keuken is voorzien van verschillende inbouwapparatuur waaronder een combi-oven, inductie kookplaat, afzuigkap, vaatwasser, separate koelkast en vriezer. Openslaande tuindeur naar de zonnige achtertuin gelegen op het westen die is afgewerkt met bestrating en schuttingen. Aan de achterzijde van de woning is er een houten berging van 6 m2. Ook is er een achterom, ideaal!

1e verdieping:
Overloop die toegang geeft tot 3 royale slaapkamers en een badkamer voorzijde met raam. De slaapkamers zijn afgewerkt met een vinylvloer en glad gestuukte wanden. Alle slaapkamers van de woning beschikken over rolluiken. De keurige badkamer is voorzien van een inloopdouche, wastafelmeubel en toilet.

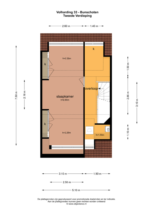
2e verdieping:
Dit betreft een voor zolder met aansluitingen voor wasmachine en droger, CV-opstelling (2018) en mechanische ventilatie box. Zeer royale luxe slaap/werk kamer voorzien van dakkapellen aan de voor- en achterzijde. Deze prachtige ruimte kan nog geheel naar eigen inzicht worden ingedeeld. Diverse bergruimtes onder de kap.

KENMERKEN:

- Zonnepanelen 9 stuks
- Rolluiken gehele eerste verdieping
- Vloerverwarming begane grond en 1e verdieping
- Uitstekend onderhouden woning
- Gelegen in het centrum met authentieke haven van Spakenburg op loopafstand.
- Alle voorzieningen binnen handbereik
- Mogelijkheid tot realisatie 4e en 5e slaapkamer zolderverdieping
- Energielabel A
- Oplevering in overleg
Lees de volledige omschrijving

Kenmerken

Overdracht

Aanvaarding
in overleg

Bouw

Soort woning
eengezinswoning
Type woning
tussenwoning
Soort bouw
bestaande bouw
Bouwjaar
2018
In aanbouw
nee
Bouwperiode
vanaf 2011

Details

Voorzieningen
glasvezel kabel, mechanische ventilatie, rolluiken, zonnecollectoren
Ligging
aan rustige weg, beschutte ligging, in centrum, in woonwijk
Permanente bewoning
ja
Daktype
zadeldak
Dakmateriaal
pannen

Oppervlakten en inhoud

Woonoppervlakte
132 m²
Oppervlakte overige functies
1 m²
Perceel
117 m²
Inhoud
463 m³

Indeling

Aantal kamers
5
Aantal slaapkamers
4
Aantal etages
3
Aantal badkamers
1

Isolatie en verwarming

Isolatievormen
volledig geïsoleerd
Soort verwarming
cv ketel, vloerverwarming geheel
Warmwater installatie
cv ketel
Ketel bouwjaar
2018
Ketel type
Intergas
Ketel gas/olie
gas
Ketel eigendom
eigendom

Energielabel

Energielabel
A
Einddatum energielabel
2028-04-08

Kadastrale gegevens

Kadastrale aanduiding
Bunschoten K 5143
Oppervlakte
117 m²
Eigendomssituatie
volle eigendom

Buitenruimte

Tuintype(n)
achtertuin
Totale oppervlakte
56 m²

Schuur/berging

Aantal
1
Soort
vrijstaand hout
Bekijk alle kenmerken

Alle foto's

Kaart Volharding 33 Bunschoten-Spakenburg

naar Volharding 33 Bunschoten-Spakenburg
Op 5 minuten loopafstand Op 5 minuten fietsafstand

Deel dit object