afbeelding
Vorige | Volgende

Vijverhof Bunschoten-Spakenburg

Koopsom € 789.000 v.o.n.

Bewaar object

Omschrijving

Thuis: dé plek waar je tot rust komt. En hoe doe je dat beter dan je te omringen met groen en de natuur? De sterke band met de natuur is precies wat deze 2 onder 1 kapwoning zo bijzonder maakt. Ontdek waarom dit jouw droomhuis is!

Het hart van het huis

Via de entree aan de zijkant stap je binnen in de hal met toilet, meterkast en deur naar de woonkamer. Daar bereik je het open woongedeelte waar koken, eten en wonen gezellig met elkaar in verbinding staan. Ook vind je hier de trap naar boven. Aan de voorkant van de woonkamer is de keuken en aan de achterkant vind je de zithoek met riante raampartijen en de openslaande deur naar de tuin. Nog meer leefruimte creëren? Dat kan met een uitbouw richting de tuin of bij de entree, waardoor ruimte ontstaat voor een extra zithoek. Achter in de tuin is er een houten berging voor bijvoorbeeld de fietsen. De auto(‘s) parkeer je op 1 van de 2 privéparkeerplaatsen op eigen terrein, en toch mooi uit het zicht.

Ruimte en comfort op de verdieping

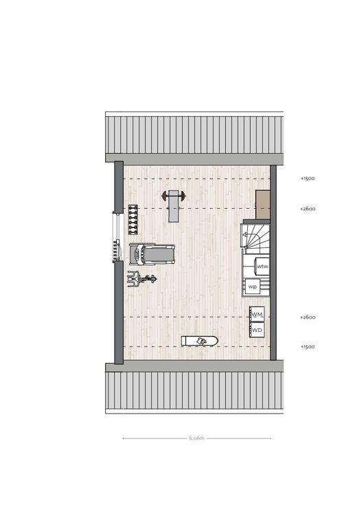
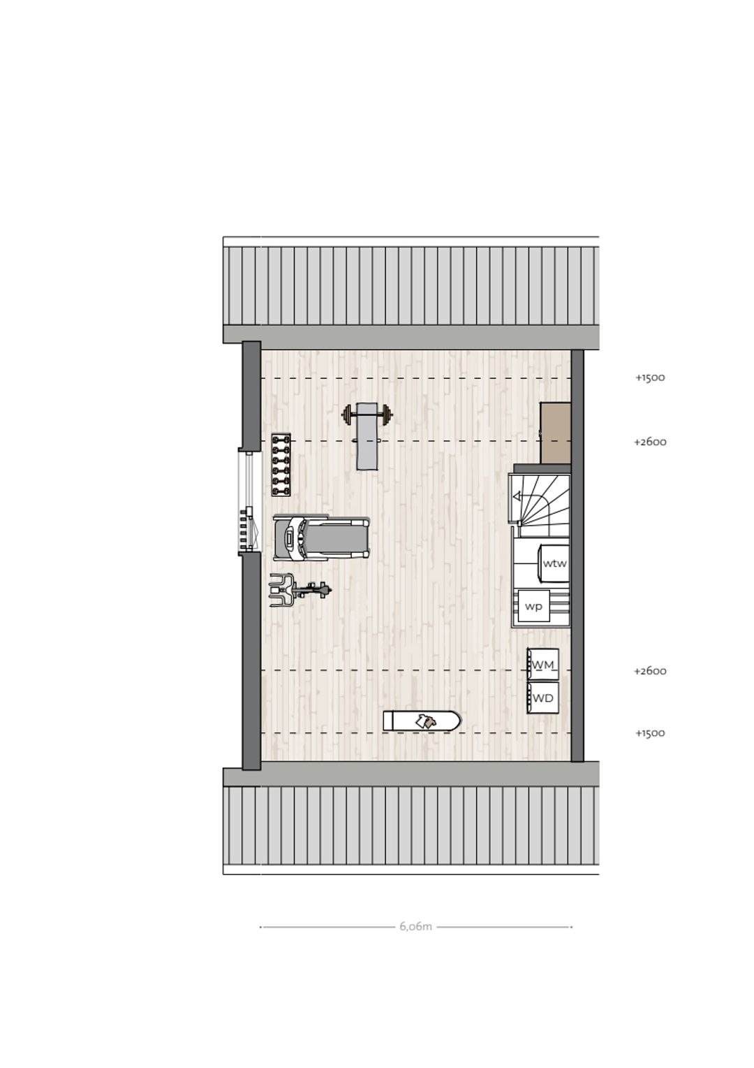
Op de 1e etage zijn er 3 ruime slaapkamers, ieder met genoeg plek voor een comfortabel bed en kledingkasten. De badkamer is voorzien van een toilet, douche met douchedrain en extra grote wastafel. Wil je graag een ligbad? Dan is daar voldoende ruimte voor. Op de zolder heb je nog meer ruimte; een ideale plek voor kinderen om te spelen, spullen op te bergen óf een thuiskantoor van te maken. De mogelijkheden zijn er! Ook vind je hier de aansluitingen voor je wasmachine en droger.
Lees de volledige omschrijving

Kenmerken

Overdracht

Aanvaarding
in overleg

Bouw

Soort woning
eengezinswoning
Type woning
2-onder-1-kapwoning
Soort bouw
nieuwbouw
Bouwjaar
2027
In aanbouw
nee
Bouwperiode
vanaf 2011

Details

Voorzieningen
zonnecollectoren
Permanente bewoning
ja
Daktype
zadeldak
Dakmateriaal
pannen

Oppervlakten en inhoud

Woonoppervlakte
156 m²
Inhoud
430 m³

Indeling

Aantal kamers
4
Aantal slaapkamers
3
Aantal etages
3
Aantal badkamers
1

Isolatie en verwarming

Isolatievormen
dakisolatie, muurisolatie, vloerisolatie, volledig geïsoleerd
Soort verwarming
vloerverwarming geheel, warmtepomp

Energielabel

Energielabel
A++++

Buitenruimte

Tuintype(n)
achtertuin
Hoofdtuin type
achtertuin
Hoofdtuin oppervlakte
141 m²
Ligging hoofdtuin
oost
Totale oppervlakte
141 m²
Bekijk alle kenmerken

Alle foto's

Kaart Vijverhof Bunschoten-Spakenburg

naar Vijverhof Bunschoten-Spakenburg
Op 5 minuten loopafstand Op 5 minuten fietsafstand

Deel dit object